 
                    - Marca: Salcas
- Modelo: TP3400
- 
				Download dos Documentos
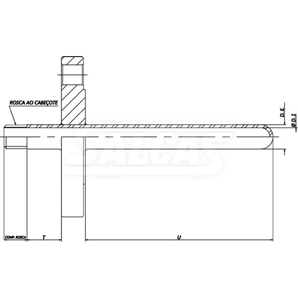
Os tubos de proteção metálica são utilizados juntamente com um termopar em medições em meio a líquido e gases, em mÉdia e alta temperatura. Com o material de proteção adequado e dependendo das condições e da atmosfera do processo ou aplicação, podem ser utilizados atÉ 1100ºC.
Em geral, os tubos de proteção metálica são ideais para processos que exigem uma proteção com diâmetro maior do que normalmente disponíveis em termopares de isolação mineral e aplicações em serviços que se exigem sensores robustos. Para processos com pressões elevadas utilizar montagem com Tubos de Conexão rosqueados ou flangeados.
Principais aplicações dos tubos de proteção metálica para termopar TP3400:
Indústrias, cimenteiras, siderúrgicas, cerâmicas vermelhas, tratamentos tÉrmicos, fundições, incineradores, controle de temperatura de aquecedores, etc
Diferente da aplicação em relação aos Poços TermomÉtricos, os Tubos de Proteção não são utilizados para vedar os processos onde se encontra o sensor, sua função É protegê-los do meio onde estão instalados e com isso aumentar a sua vida útil.
Os Tubos de Proteção mais utilizados são os metálicos e cerâmicos, mas a SALCAS Também fornece outros materiais sob consulta.
Os procedimentos usados para a fabricação dos Tubos de Proteção, são os mesmos para os poços, assegurando total controle da sua qualidade.
 
          
 
                                   
                                   
                                   
                                   
                                   
                                   
                                   
                                  